Հիփոթեքի հաշվիչ
4 Սենյակ
80 Ք.Մ
5 / 5
2.8 Մ
1
Ինֆորմացիա
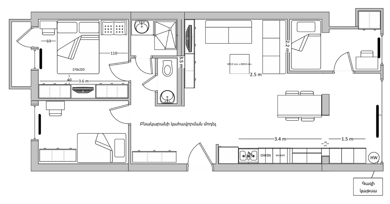
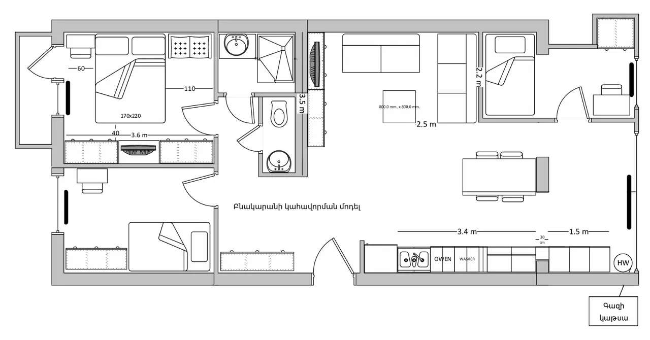
Վաճառվում է կապիտալ վերանորոգված 3 սենյականոց բնակարան (ձևափոխված 3 լուսավոր ննջասենյակի)՝ Մերգելյանում, Հակոբյան 8 հասցեով։ Բաց հատակագիծ՝ միացված հյուրասենյակ և խոհանոց, առանձին լոգասենյակ և սանհանգույց։ - 80.2 քմ, քարե շենքի 5/5-րդ հարկ, արևելք-արևմուտք լուսավորությամբ։ - Ունի բաց պատշգամբ հիմնական ննջասենյակից։ Բնակարանի մասին - Կապիտալ վերանորոգում՝ նոր տանիք, պղնձե էլեկտրալարեր, ջրախողովակներ, ջերմամեկուսացված պատուհաններ - Ջեռուցման համակարգ և օդորակիչ - Բաց հատակագիծ՝ միացված խոհանոց և հյուրասենյակ, 3 ննջասենյակ - Բարձրակարգ եվրոպական ներքին դռներ, իտալական և գերմանական լուսավորություն, ֆրանսիական ձգվող առաստաղներ - Պատվերով ներկառուցված պահարաններ և դարակաշար - Ժամանակակից խոհանոց՝ չժանգոտվող պողպատից սարքավորումներով, Corian աշխատանքային մակերեսով, կարծրացված ապակե պատի երեսապատմամբ - Մասամբ կահավորված և հարդարված՝ եվրոպական թանկարժեք կահույք, բրդյա գորգ, խոհանոցային սարքավորումներ, փոշեկուլ, 32" հեռուստացույց Տեղադրություն - Քայլելու հեռավորության վրա՝ Բարեկամություն մետրո, սուպերմարկետներ, գյուղտնտեսական շուկա, սրճարաններ, ֆիթնես կենտրոն, Մերգելյան այգի, Նաիրի Զարյան դպրոց - Խաղաղ և մաքուր՝ զերծ փողոցի աղմուկից ու փոշուց Գինը՝ 154,000 ԱՄՆ դոլար։
Կոմունալ հարմարություններ
Ջեռուցում
Ինտերնետ
Տաք ջուր
Էլեկտրոէներգիա
Գազ
Խմելու ջուր
Մշտական ջուր
Լրացուցիչ
Կահույք
Տեխնիկա
Եվրոպատուհան
Բաց պատշգամբ
Լամինատ
Գեղեցիկ տեսարան
Ճանապարհամերձ
Զբոսայգի
Գնահատական
Հիփոթեքի հաշվիչ
4 Սենյակ
80 Ք.Մ
5 / 5
2.8 Մ
1








