Նորակառույց | Բնակարան |
Վաճառք
Երևան, Կենտրոն, Անտառային փող
ID 194228
| $ 479,000 |
Գինը վերջնական չէ,կարող է փոխվել:
Դիտումների քանակ - 534
Հիփոթեքի հաշվիչ
4 Սենյակ
208 Ք.Մ
12 / 12
3 Մ
3
Շինության տիպը
Մոնոլիտ
Վիճակը
Զրոյական
Ինֆորմացիա
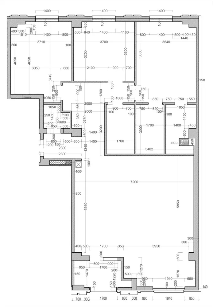
Վաճառվում է Պենտհաուս Անտառային թաղամասում՝ «Ռիգա Հաուս» նորակառույց համալիրում։Բնակարանի ընդհանուր մակերեսը կազմում է 208 ք․մ․( 136,4 ք.մ. բնակելին է և 71,8 ք.մ. 3 տերասան),որը գտնվում է զրոյական վիճակում,տեղադրված են վիտրաժային պատուհաններ,երկաթե դուռ,պատերը գաջված են,հատակը՝ հարթեցված։Բնակարանն ունի հարավ-արևելյան դիրք,բացվում է գեղեցիկ տեսարան դեպի քաղաք և Արարատ լեռը: Բնակարանը բաղկացած է՝ հյուրասենյակ,խոհանոց,3 ննջարան,3 սանհանգույց և 3 տերասսա։
Կոմունալ հարմարություններ
Խմելու ջուր
Մշտական ջուր
Էլեկտրոէներգիա
Ինտերնետ
Տաք ջուր
Գազ
Ջեռուցում
Լրացուցիչ
Երկաթյա դուռ
Երկկողմանի
Անվտանգության համակարգ
Գեղեցիկ տեսարան
Արևկող
Եվրոպատուհան
Վերելակ
Բաց պատշգամբ
Գնահատական
Նորակառույց | Բնակարան |
Վաճառք
Երևան, Կենտրոն, Անտառային փող
ID 194228
| $ 479,000 |
Գինը վերջնական չէ,կարող է փոխվել:
Դիտումների քանակ - 534
Հիփոթեքի հաշվիչ
4 Սենյակ
208 Ք.Մ
12 / 12
3 Մ
3
Շինության տիպը
Մոնոլիտ
Վիճակը
Զրոյական








