Նորակառույց | Կոմերցիոն |
Վաճառք
Երևան, Քանաքեռ-Զեյթուն, Սևակի փող
ID 194091
| $ 130,000 |
Գինը վերջնական չէ,կարող է փոխվել:
Դիտումների քանակ - 518
Հիփոթեքի հաշվիչ- Շինության ներսում
69 Ք.Մ
1 / 18
3 Մ
Շինության տիպը
Մոնոլիտ
Վիճակը
Զրոյական
Ինֆորմացիա
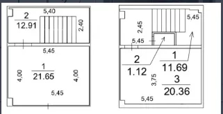
Պարույր Սևակի նորակառույց շենքում վաճառվում է բազմաֆունկցիոնալ տարածք։ Առկա են 56քմ-ից սկսած տարածքներ 18 հարկանի բազմաբնակելի շենքի առաջին հարկում։ Հարմար են բոլոր տեսակի գործունեության համար։ Կան և զրոյական և վերանորոգված տարածքներ, բոլորը վիտրաժներով՝ արևկող և լուսավոր։
Գնահատական
Նորակառույց | Կոմերցիոն |
Վաճառք
Երևան, Քանաքեռ-Զեյթուն, Սևակի փող
ID 194091
| $ 130,000 |
Գինը վերջնական չէ,կարող է փոխվել:
Դիտումների քանակ - 518
Հիփոթեքի հաշվիչ- Շինության ներսում
69 Ք.Մ
1 / 18
3 Մ
Շինության տիպը
Մոնոլիտ
Վիճակը
Զրոյական







