Նորակառույց | Բնակարան |
Վաճառք
Երևան, Քանաքեռ-Զեյթուն, Դավիթ Անհաղթի փող
ID 194083
| $ 155,000 |
Գինը վերջնական չէ,կարող է փոխվել:
Դիտումների քանակ - 546
Հիփոթեքի հաշվիչ
2 Սենյակ
64 Ք.Մ
2 / 15
3 Մ
1
Շինության տիպը
Մոնոլիտ
Վիճակը
Վերանորոգված
Ինֆորմացիա
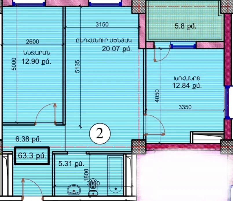
Դավիթ Անհաղթի փողոցում վաճառվում է 2 սենյականոց բնակարան,որը գտնվում է 15 հարկանի նորակառույց շենքի 2րդ հարկում:Բնակարանի ընդհանուր մակերեսը կազմում է 63,5 ք.մ.,որը վերանորոգված է ժամանակակից ոճով,ունի մասնակի կահավորում՝ որակյալ գույք-տեխնիկայով։Բնակարանը բաղկացած է՝ ննջասենյակ,հյուրասենյակ,առանձնացված խոհանոց՝ իր ընդարձակ բաց պատշգամբով և ընդհանուր մեկ սանհանգույց։Շենքում գործում են բարձրորակ վերելակներ:Բակը բարեկարգված է,նախատեսված է խաղահրապարակ։Հարևանությամբ են անհրաժեշտ խանութները և տրանսպորտի կանգառները։
Կոմունալ հարմարություններ
Ջեռուցում
Ինտերնետ
Տաք ջուր
Էլեկտրոէներգիա
Օդորակիչ
Գազ
Խմելու ջուր
Մշտական ջուր
Լրացուցիչ
Կահույք
Տեխնիկա
Եվրոպատուհան
Երկաթյա դուռ
Բաց պատշգամբ
Սալիկ
Լամինատ
Անվտանգության համակարգ
Վերելակ
Գնահատական
Նորակառույց | Բնակարան |
Վաճառք
Երևան, Քանաքեռ-Զեյթուն, Դավիթ Անհաղթի փող
ID 194083
| $ 155,000 |
Գինը վերջնական չէ,կարող է փոխվել:
Դիտումների քանակ - 546
Հիփոթեքի հաշվիչ
2 Սենյակ
64 Ք.Մ
2 / 15
3 Մ
1
Շինության տիպը
Մոնոլիտ
Վիճակը
Վերանորոգված








