Նորակառույց | Առանձնատուն |
Վաճառք
Կոտայք, Քասախ,
ID 193970
| $ 120,000 |
Գինը վերջնական չէ,կարող է փոխվել:
Դիտումների քանակ - 741
Հիփոթեքի հաշվիչ
4 Սենյակ
130 Ք.Մ (Հողի մակերես)
120 Ք.Մ (Տան մակերես)
3 Հարկ
3 Մ
2
Շինության տիպը
Մոնոլիտ
Վիճակը
Զրոյական
Ինֆորմացիա
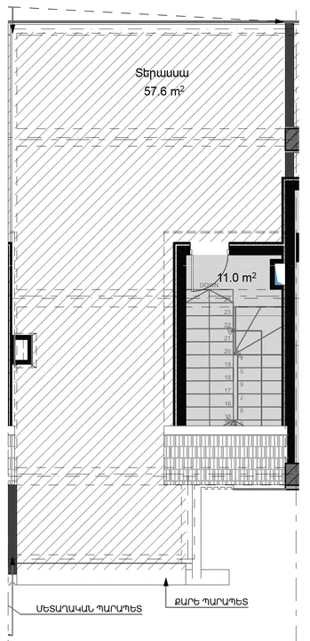
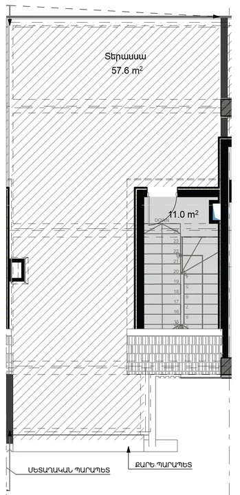
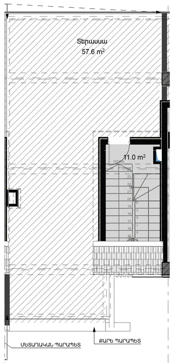
Վաճառքի եռահարկ Թաուհաուս Քասախում, Հոմպլեքսի հարևանությամբ։1-ն հարկը մոտ 50քմ է, որտեղ ըստ նախագծի հյուրասենյակն է խոհանոցի հետ միասին ստուդիո տարբերակով,և մեկ սանհանգույց,2-րդ հարկը 75քմ է 3 ննջասենյակ և 1 կամ 2 սանհանգույց և 3-րդ հարկում շատ մեծ և ընդարձակ տերասա,75քմ և ավել։ Թաուհաուսը հանձնվելու է գնորդին երեսպատված,վիտրաժները,պատուհանները և մուտքի դուռը տեղադրած վիճակում և բակային ու հողային աշխատանքները կատարված որը իդեպ 65քմ է։
Կոմունալ հարմարություններ
Խմելու ջուր
Մշտական ջուր
Էլեկտրոէներգիա
Գազ
Լրացուցիչ
Երկաթյա դուռ
Երկկողմանի
Պարսպապատ
Ավտոհանգրվան
Ճանապարհամերձ
Եվրոպատուհան
Բաց պատշգամբ
Գնահատական
Նորակառույց | Առանձնատուն |
Վաճառք
Կոտայք, Քասախ,
ID 193970
| $ 120,000 |
Գինը վերջնական չէ,կարող է փոխվել:
Դիտումների քանակ - 741
Հիփոթեքի հաշվիչ
4 Սենյակ
130 Ք.Մ (Հողի մակերես)
120 Ք.Մ (Տան մակերես)
3 Հարկ
3 Մ
2
Շինության տիպը
Մոնոլիտ
Վիճակը
Զրոյական








