Коммерческая недвижимость |
Продажа
Ереван, Канакер-Зейтун, Севак ул
ID 194241
| $ 130,000 |
Цена не конечная,может изменится.
Кол. просмотров - 647
Калькулятор ипотеки- Внутри построики
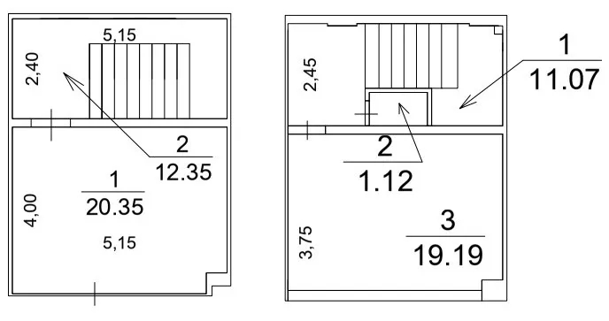
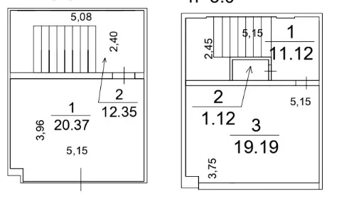
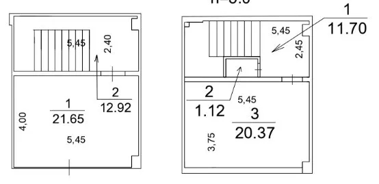
56 Кв. м
1 / 18
3 М
Тип постройки
Монолит
Состояние
Нулевое состояние







