Новостройки | Коммерческая недвижимость |
Продажа
Ереван, Канакер-Зейтун, Севак ул
ID 194247
| $ 121,000 |
Цена не конечная,может изменится.
Кол. просмотров - 599
Калькулятор ипотеки- Внутри построики
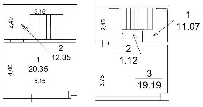
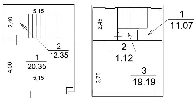
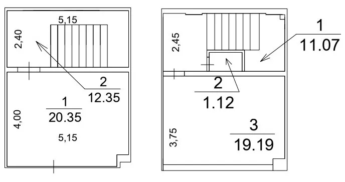
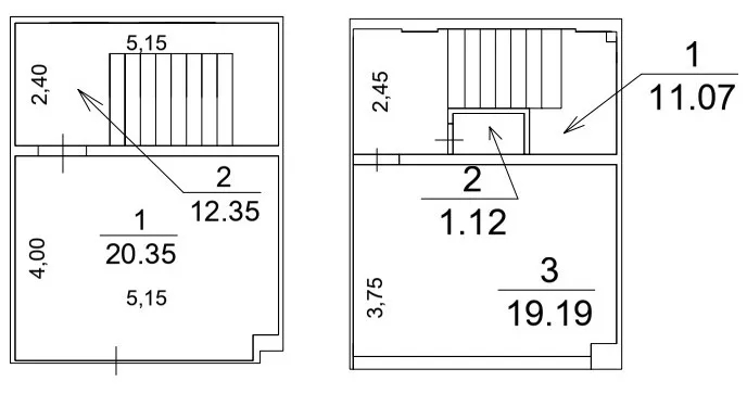
64 Кв. м
1 / 18
3 М
Тип постройки
Монолит
Состояние
Нулевое состояние







