ساختمان نوساز | واحد تجاری- اداری |
خرید
ایروان, کاناکِر – زیتون, خیابان سِواک
ID 194247
| $ 121,000 |
قیمت نهایی نیست، قابل تغییر است.
View count - 593
محاسبه اقساط - داخل ساختمان
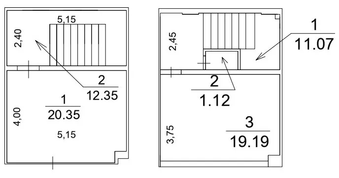
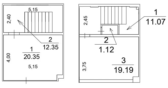
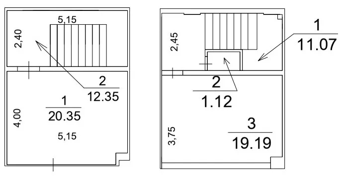
64 متر مربع
1 / 18
3 M
نوع ساختمان
مونولیت(یکپارچه)
وضعیت ملک
نیمه کاره







